RIF.A3271

INFORMAZIONI

€ 37.200 (Canone annuale)
€ 5.400 (Oneri condominiali annuali)
125 mq
1960
2 su 8 con ascensore
Ristrutturato
2
Abitabile
2
Box singolo
Centralizzato
Classe energetica: E IPE: 153,15 kWh/mqa

descrizione

Fiera-City Life - Trilocale arredato

Via Monti/City Life, in via di assoluta tranquillità, Kyos Immobiliare propone in locazione appartamento completamente arredato e pronto da abitare.
Lo stabile in cui è ubicato l'immobile è dotato di doppio ascensore e presidiato da un servizio di portineria.
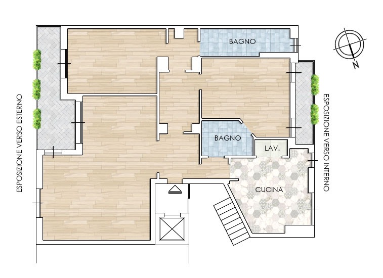
L'appartamento si trova al secondo piano ed è così composto: ingresso, ampia sala con zona pranzo e zona conversazione, ampia camera singola con bagno privato, suite matrimoniale con zona guardaroba e bagno privato, cucina abitabile con zona lavanderia, due balconi, cantina attrezzata.
E' presente un arredo completo in tutti i locali.
Affaccio doppio, sul parco e sull'interno, serramento con doppi vetri, aria condizionata autonoma e riscaldamento centralizzato il cui costo è già compreso nelle spese condominiali.
L'intero stabile è stato oggetto di completa ristrutturazione portandolo a migliorare di due categorie di efficientamento energetico, aspetto importante sempre, ma particolarmente in questo momento.
Possibilità box nello stabile.
La soluzione è adatta a nuclei familiari di tre persone.
Disponibilità immediata.
Contattateci per ulteriori informazioni e per concordare un appuntamento di visita
Classe energetica E IPE: 153,15 kWh/mqa in conformità del Dgr VIII/8745 del 22/12/2008

planimetria

mappa

Invia Richiesta







Trattamento dei dati personali:


CHIAMA

WHATSAPP

SCRIVICI